KMS Thermal

Quenching System

Quenching involves the rapid cooling of a metal to adjust the mechanical properties of its original state. To perform the quenching process, a metal is heated to a temperature greater than that of normal conditions, typically somewhere above its recrystallization temperature below its melting temperature. The metal may be held at this temperature for a set time in order for the heat to “soak” the material. Once the metal has been held at the desired temperature, it is quenched in a medium until it returns to room temperature. The metal also may be quenched for an extended period of time so that the coolness from the quenching process is distributed throughout the thickness of the material.
There are a variety of quenching media available that can perform the quenching process. Considerations for the type of media use include quenching speed, quenching media environmental concerns, quenching media replacement, and quenching media cost. Here are the main types of quenching media:

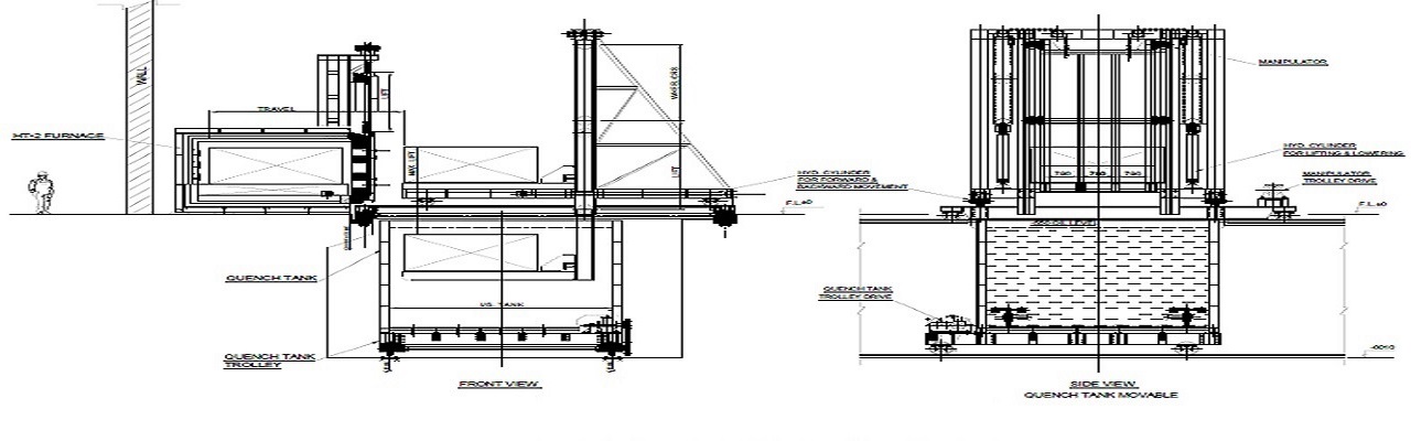
KMS has technology and capability to develop quenching system comprising of quenching tanks, agitation system, heat exchangers etc. to have uniform quenching temperature across the entire surface of the job with highest precision. We have following types of quenching system:-

  1. Fixed type quenching tank and its auxiliary
  2. Continuous Quenching system with a speed control chain conveyor system
  3. Mobile rail mounted automatic movable quenching tanks and its auxiliary which can cater number of furnaces as required