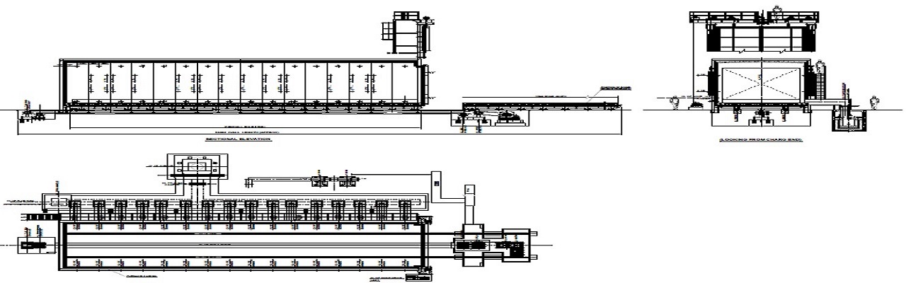
KMS Thermal

Furnace with Auxliaries and Chimney Drafting System

Over the year KMS earned esteem pride for executing high to low temperature furnaces (with Gas fired /oil fired and electrical) with various kind of combustion system with different temperature profile as per the specific Clients requirement. We also capable to provide solutions for auxiliaries like draft system of the furnace, Fuel Stations (Gas/Oil) and fuel oil loading /unloading, chimney with natural or force draft system etc.

Our core expertise for following type of furnaces in Steel & Alluminium Sector :-